Box / posti auto in vendita

Milano, Via Giorgio Merula - Lodovico Il Moro
€ 35.000
1 locale 1 locale
12 Mq 12 Mq

Box / posti auto in vendita

Milano, Via Giorgio Merula - Lodovico Il Moro

Descrizione annuncio

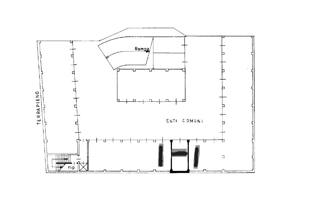
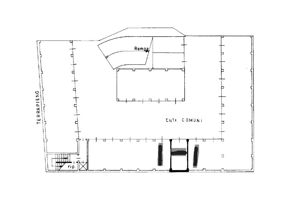
VIA GIORGIO MERULA 9/3

In vendita due box auto situati in Via Giorgio Merula 9/3, collocati al piano -2 di un contesto ordinato e facilmente accessibile. Entrambi gli spazi, di circa 12 mq ciascuno, risultano liberi e immediatamente disponibili.

La posizione al piano interrato garantisce protezione dagli agenti atmosferici e maggiore sicurezza, mentre le dimensioni rendono i box adatti sia per auto di medie dimensioni sia per uso come deposito. L’accesso è agevole e consente manovre semplici, un aspetto fondamentale per l’utilizzo quotidiano. Si tratta quindi di un’opportunità interessante sia per uso personale sia come investimento, considerando la costante domanda di spazi di parcheggio in contesti urbani.

La disponibilità immediata permette un acquisto senza attese, ideale per chi necessita di una soluzione rapida ed efficiente.

Mostra tutto

Nelle vicinanze

Trasporto pubblico Trasporto pubblico
Primaticcio
Primaticcio
1,9 Km
Bande Nere
Bande Nere
2,0 Km
Milano San Cristoforo
Milano San Cristoforo
730 m
Milano Porta Genova
Milano Porta Genova
2,6 Km
Piazzale Negrelli
Piazzale Negrelli
50 m
Ricariche auto elettriche Ricariche auto elettriche
Tigros Milano Giambellino
1,1 Km
Lidl Milano Lorenteggio
1,3 Km
Mediaworld Piazza Napoli
1,4 Km
LIDL Milano Cassala
1,7 Km
BECHARGE MILANO Stendhal
1,9 Km
Scuole Scuole
Scuola dell'infanzia "Parenzo"
440 m
Nido dell'infanzia "Parenzo"
450 m
Scuola Secondaria di Primo Grado Rinascita - Livi
450 m
MILE bilingual school
510 m
Scuola Primaria "Tre Castelli"
570 m
Farmacia Farmacia
Comunale n.2
320 m
Farmacia Biazzi
390 m
Farmacia Europea
630 m
Galenica
710 m
San Cristoforo
730 m
Ospedali Ospedali
ospedale San Paolo
1,9 Km
Casa di Cura del Policlinico
2,4 Km
Supermercati Supermercati
Lidl
450 m
Centro Commerciale Tre Castelli
470 m
Simply Market
750 m
Tigros
1,1 Km
Conad City
1,2 Km
Negozi Negozi
Negozi
100 m
Il mago del pane
490 m
Altromercato
590 m
Minimarket Kamal
600 m
Minimarket alimentari sudamericani e asiatici "Quadrifoglio"
650 m
Bar Bar
La Guantanamera
420 m
Twenty-Five
490 m
Frank Cisco
700 m
Fashion
720 m
Barlady
930 m
Ristoranti Ristoranti
Ristoranti
110 m
Ma.Si
130 m
Epoca Tango
270 m
Taberna Vasca
310 m
Lungo la Notte
420 m
Mostra tutto

Caratteristiche

Rif.:
61205698
Piano:
Seminterrato di 6 con ascensore
Totale piani:
6
Arredamento:
Assente
Condizionamento:
Assente
Ascensore:
Mostra tutto
Prezzo Prezzo
€ 35.000
Rata mutuo Rata mutuo
€ 166 / mese
Spese annue Spese annue
€ 200
Proponi il tuo prezzoProponi il tuo prezzo

Classe Energetica

G
G
G
G
G
G
G
G
G
EP globale non rinnovabile:
192.00 kW h/m² anno
EP globale rinnovabile:
192.00 kW h/m² anno
EP invernale del fabbricato:
EP estiva del fabbricato:
Anno di costruzione:
1970
Riscaldamento:
Assente

Ti interessa visionare l'immobile?

Fissa un appuntamento  Fissa un appuntamento

Richiedi informazioni

Clicca su Leggi per aprire l'informativa
* Questi campi sono obbligatori

Calcola il tuo mutuo

Semplice e senza impegno
Anticipo

( % )
Mutuo

( % )

pochi semplici passi

inserisci i tuoi dati
Questionario completato
Grazie per aver richiesto un appuntamento senza impegno con un nostro Consulente del Credito e Assicurativo.

Hai inserito correttamente tutti i dati necessari e a breve riceverai una e-mail con un link da convalidare per inviare i tuoi dati.
Affiliato
Immobiliare Milano Santa Rita Srl
Via Lodovico il Moro, 137 20142 Milano (MI)

Il nostro staff


  • Roberto Gnisci
    Affiliato

  • Simone Rapisarda
    Responsabile

  • Marianna Toscanelli
    Coordinatrice
Via Lodovico il Moro, 137 20142 Milano (MI)
Zona: Naviglio-Lodovico il Moro
Mostra su mappa
Orari: lun - ven 09:00 - 12:30 e 14:30 - 20:00sabato 09:00 - 12.30 e 14.30 - 19.00
Affiliato
Immobiliare Milano Santa Rita Srl
Via Lodovico il Moro, 137 20142 Milano (MI)

2026 Tecnocasa Franchising S.p.A. - P. IVA 08365160152 - Via Monte Bianco 60/A 20089 Rozzano (MI). Ogni agenzia ha un proprio titolare ed è autonoma. Privacy policy | Policy utilizzo | Cookie policy